250 mq
3
2
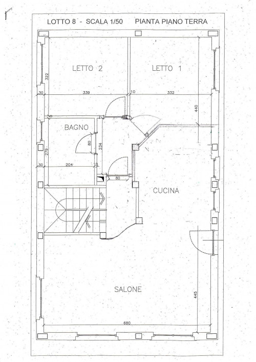
Proponiamo in Vendita Villetta immersa nel verde libera su quattro lati costruita e rifinita completamente nel 2012. L'immobile è suddiviso su tre livelli ed è così composto: al piano terra (ca. 90 mq), ingresso su ampio soggiorno con termocamino a legna, cucina a vista, due camere di cui una singola e un bagno; attraverso una scala interna si accede al piano mansardato non abitabile di ca. 65mq dove troviamo due locali sottotetto, oltre ad un grazioso terrazzo esposto a sud con vista sulla collina. Il piano seminterrato (140mq), anch'esso collegato internamente, è costituito da una grossa taverna con zona home theatre, ripostiglio e un bagno/lavanderia, inoltre vi è un'autorimessa per più autovetture. Tutto il piano è circondato da intercapedine rendendolo privo di umidità e illuminato con luce naturale. Il giardino privato pianeggiante è di circa 300mq oltre ad un porticato piastrellato super sfruttabile.
La villetta è di particolare interesse poiché è dotata di molti comforts; sono presenti infissi in legno pregiato con doppio vetro e con taglio termico, sistema di irrigazione con vasca di raccolta acque piovane, antifurto perimetrale volumetrico e riscaldamento autonomo a metano, con possibilità di regolarlo in ogni livello dell'abitazione. Tutti i materiali per la realizzazione degli interni e degli esterni sono stati scelti con cura rendendo l'immobile di pregevole fattura. Spese di gestione bassissime.
L'immobile sarà libero dal 1 novembre 2025.
Tutti i dati e le planimetrie sopra riportati non costituiscono elementi ne presupposti contrattuali.

250 mq
3
2