94 mq
1
1
RIVE GAUCHE 18
Alloggi ristrutturati a nuovo ad elevata efficienza energetica
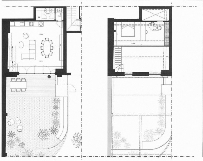
Bilocale n° T1.2 - piano Terra con soppalco, giardino privato e cantina- mq 94
Consegna prevista: fine 2025-aprile 2026
Appartamento bilocale ristrutturato a nuovo, con esposizione su corte interna, in condominio in fase di totale restauro in una zona adiacente al centro, interessata recentemente da numerosi interventi di trasformazione urbana.
L'alloggio, sito al piano terra si sviluppa su due livelli ed è così strutturato: Ingresso ampio soggiorno con cucina a vista, bagno, scala che conduce al piano superiore con camera matrimoniale.
Giardino privato di generosa metratura.
Cantina.
Rive Gauche 18 interpreta al meglio lo spirito di innovazione che anima questo scorcio suggestivo della città, a due passi dalla Dora. Il contesto urbano circostante è stato di recente interessato da numerosi interventi di trasformazione, tra cui la costruzione del nuovo Headquarter Lavazza, con annesso museo, archivio storico e area archeologica e il restauro e il recupero funzionale della storica palazzina di via Pisa in cui è stata collocata la sede dell'Istituto di Arte Applicata
e Design. Da non dimenticare nei pressi il prestigioso Campus Universitario Einaudi.
Il fiore all'occhiello saranno le parti comuni e i servizi condominiali: servizio di portineria; area gym e sala riunioni condominiale; locale per le biciclette, con possibilità di ricarica per i mezzi elettrici, per favorire la mobilità sostenibile; locale lavanderia comune attrezzato e una deliziosa area cortilizia con percorsi e sedute e l'inserimento di alberi a medio fusto per garantire l'ombreggiamento di alcune aree e la piantumazione di cespugli.
Nel progetto è stata posta particolare attenzione alla struttura industriale preesistente la quale, sgombera dagli elementi orizzontali di copertura, viene ora integrata nel disegno dello spazio a cortile assumendo valore di archeologia industriale.
Altre soluzioni su www.rivegauche18.com

94 mq
1
1