95 mq
2
1
Appartamento di pregio - piano alto - ristrutturato e arredato
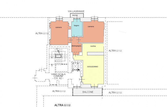
In Palazzo Lagrange, prestigioso immobile storico oggetto di recente pregevole ristrutturazione riguardante sia le parti comuni sia le singole unità abitative, proponiamo bellissimo Appartamento trilocale, completamente arredato, sito al quarto piano, così strutturato: soggiorno, cucina, due camere da letto, bagno con finestra.
Balcone su via Lagrange e ampio balcone abitabile su gradevole corte interna.
Riscaldamento a pavimento.
Condizionamento.
Antifurto.
L'alloggio si trova in in posizione privilegiata, affacciato sulla via dello shopping più esclusivo, adiacente via Roma e piazza San Carlo e a pochi passi da Porta Nuova e dalla metro.
Ideale anche per chi ha il proprio baricentro lavorativo nella città di Milano.
Classe energetica A1
Prestigious apartment, renovated and finely furnished
In Palazzo Lagrange, a prestigious historic building recently renovated in great detail, both in the common areas and in the individual housing units, we offer a beautiful three-room apartment, fully furnished, located on the fourth floor, structured as follows: living room, kitchen, two bedrooms, bathroom with window.
Balcony on Via Lagrange and large habitable balcony on a pleasant internal courtyard.
Underfloor heating.
Conditioning.
Anti-theft device.
The accommodation is located in a privileged position, overlooking the most exclusive shopping street, adjacent to Via Roma and Piazza San Carlo and a few steps from Porta Nuova and the metro.
Also perfect for those who have their work center in the city of Milan.
Energy class A1

95 mq
2
1