1.260 mq
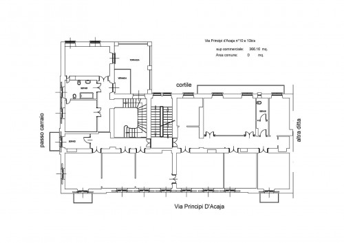
In prossimità della stazione di Porta Susa e a pochi metri dalla fermata metro Principi D'Acaja, proponiamo, in posizione unica, palazzina di rappresentanza cielo terra nel cuore Liberty di Torino con 8 posti auto nel cortile ed un box auto chiuso così distribuita:

1.260 mq