107 mq
2
2
LES ARCHES 33
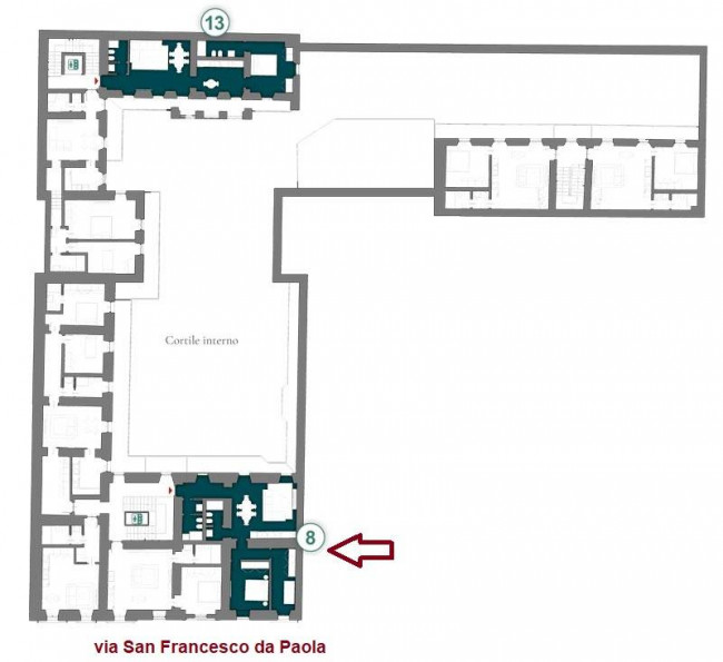
Alloggi di pregio ristrutturati a nuovo in elegante edificio d'epoca - alloggio trilocale n°8 - piano primo - mq 107
Consegna prevista: fine 2025
Ampio trilocale ristrutturato a nuovo, con doppia esposizione, in condominio storico in fase di totale restauro con l'applicazione di soluzioni impiantistiche che garantiscano comfort abitativo e risparmio energetico.
Possibilità posto auto in autorimessa condominiale meccanizzata (Silos) e parti comuni di prestigio.
L'alloggio, sito al piano primo, è così strutturato: ingresso, soggiorno con cucina a vista e balcone su corte interna, disimpegno, due camere (una matrimoniale con balcone alla francese ed una singola), due bagni.
Cantina.
Esposizione doppia est/ovest su corte interna e via San Francesco da Paola.
Portineria
Les Arches 33 è una nuova e ambiziosa iniziativa di riqualificazione edilizia che si inserisce armoniosamente in una delle aree più prestigiose di Torino, il Borgo Nuovo.
Ciò che rende davvero speciale questo progetto è l'attenzione ai dettagli e l'incorporazione di elementi impiantistici moderni, che garantiranno il massimo comfort abitativo.
Questo equilibrio tra conservazione del patrimonio storico e l'adozione di tecnologie moderne vuole rappresentare un esempio di eccellenza nel campo della riqualificazione urbana.
Ma il fiore all'occhiello saranno le parti comuni e i servizi condominiali: servizio di portineria; possibilità di parcheggio interno in autorimessa interrata meccanizzata (silos); palestra e sala riunioni condominiale; locale per le biciclette, con possibilità di ricarica per i mezzi elettrici, per favorire la mobilità sostenibile; locale lavanderia comune attrezzato.
L'edificio, originariamente noto come Casa Lessona, è oggetto di un attento recupero edilizio che saprà conservarne la sua natura storica, rispettando e valorizzando le sue caratteristiche architettoniche originali.
Altre soluzioni su www.lesarches33.com

107 mq
2
2