183 mq
3
4
RIVE GAUCHE 18
Alloggi ristrutturati a nuovo ad elevata efficienza energetica
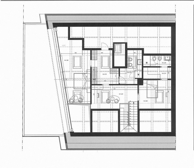
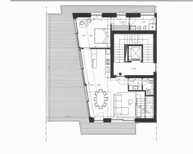
Plurilocale n° 4.1 - piano quarto bilivello con ampio terrazzo panoramico vista Mole Antonelliana e arco alpino - mq 183
Consegna prevista: fine 2025-aprile 2026
Appartamento plurilocale ristrutturato a nuovo, con tripla esposizione, in condominio in fase di totale restauro in una zona adiacente al centro, interessata recentemente da numerosi interventi di trasformazione urbana.
L'alloggio, sito al quarto piano è così strutturato: Ingresso living in ampio soggiorno con con zona relax, zona pranzo e cucina a vista, camera matrimoniale, doppi servizi;
al piano superiore due camere e due bagni.
Tre cabine armadio
Ampio terrazzo panoramico vista Mole Antonelliana e arco alpino.
Cantina.
Possibilità di box auto a parte.
Rive Gauche 18 interpreta al meglio lo spirito di innovazione che anima questo scorcio suggestivo della città, a due passi dalla Dora.. Il contesto urbano circostante è stato di recente interessato da numerosi interventi di trasformazione, tra cui la costruzione del nuovo Headquarter Lavazza, con annesso museo, archivio storico e area archeologica e il restauro e il recupero funzionale della storica palazzina di via Pisa in cui è stata collocata la sede dell'Istituto di Arte Applicata e Design.
Da non dimenticare nei pressi il prestigioso Campus Universitario Einaudi.
Il fiore all'occhiello saranno le parti comuni e i servizi condominiali: servizio di portineria; area gym e sala riunioni condominiale; locale per le biciclette, con possibilità di ricarica per i mezzi elettrici, per favorire la mobilità sostenibile; locale lavanderia comune attrezzato e una deliziosa area cortilizia con percorsi e sedute e l'inserimento di alberi a medio fusto per garantire l'ombreggiamento di alcune aree e la piantumazione di cespugli.
Nel progetto è stata posta particolare attenzione alla struttura industriale preesistente la quale, sgombera dagli elementi orizzontali di copertura, viene ora integrata nel disegno dello spazio a cortile assumendo valore di archeologia industriale.
Altre soluzioni su www.rivegauche18.com

183 mq
3
4